Holiday Schedule Posted View Hours

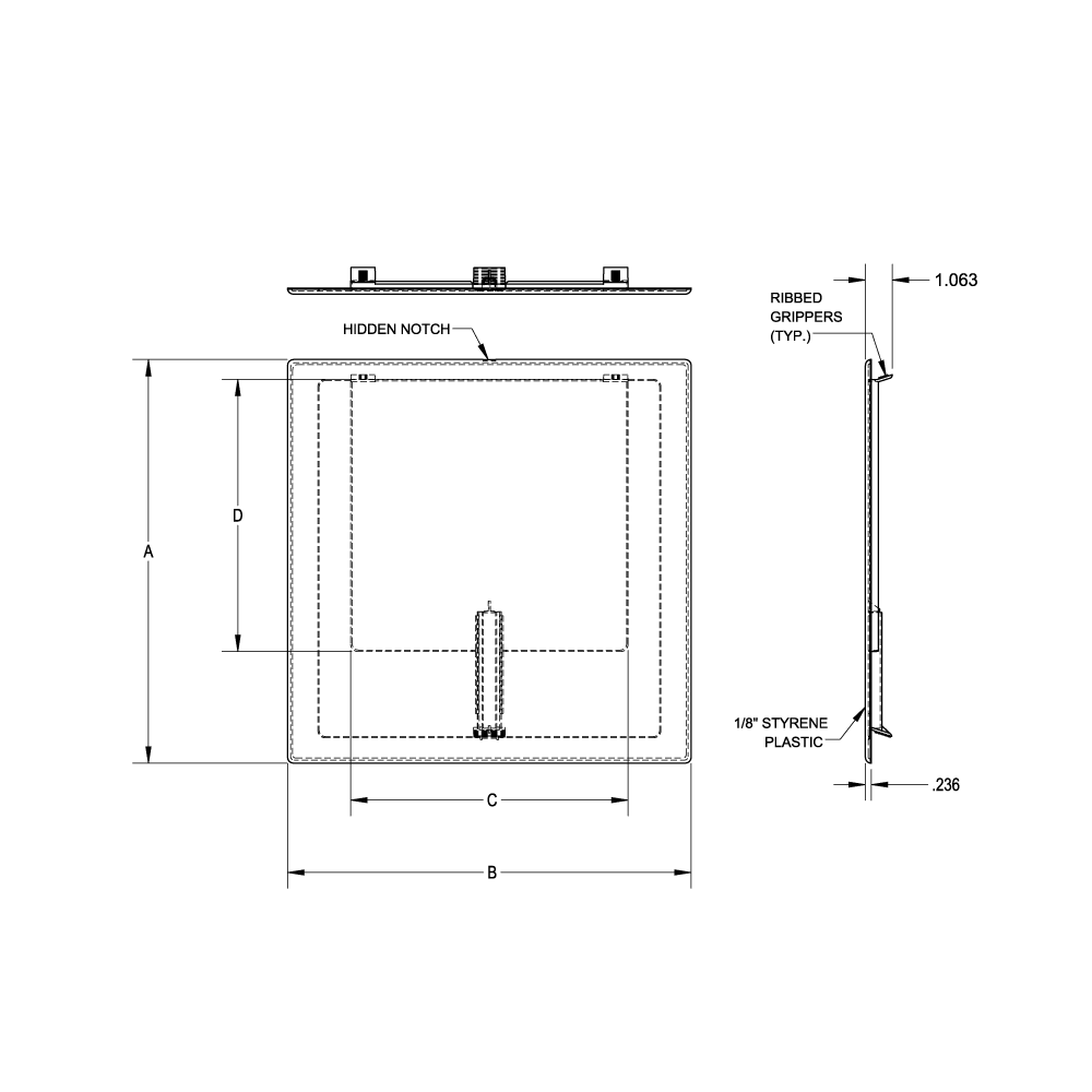
Acudor Spring Fit Plastic Flush Access Cover PC-2000

Acudor  |  SKU: 08APPC000808  |  Barcode: 752594810106
Regular price $1300 AUD
Shipping calculated at checkout.
Size

The Acudor PC-2000 is a plastic access cover to be installed in drywall walls and ceilings. The PC-2000 provides easy access with a removable, Spring-Fit panel.

Cover:

1/8" High impact styrene plastic with UV stabilizers, rounded safety corners, spring fitted, ribbed grippers that snaps tight in openings. Hidden notch designates the side that is pushed to install and remove the cover.

Finish:

White with textured exposed surfaces. Suitable for finish paint.